豊丘村河野りんご広場A棟土地付き分譲住宅開始開始
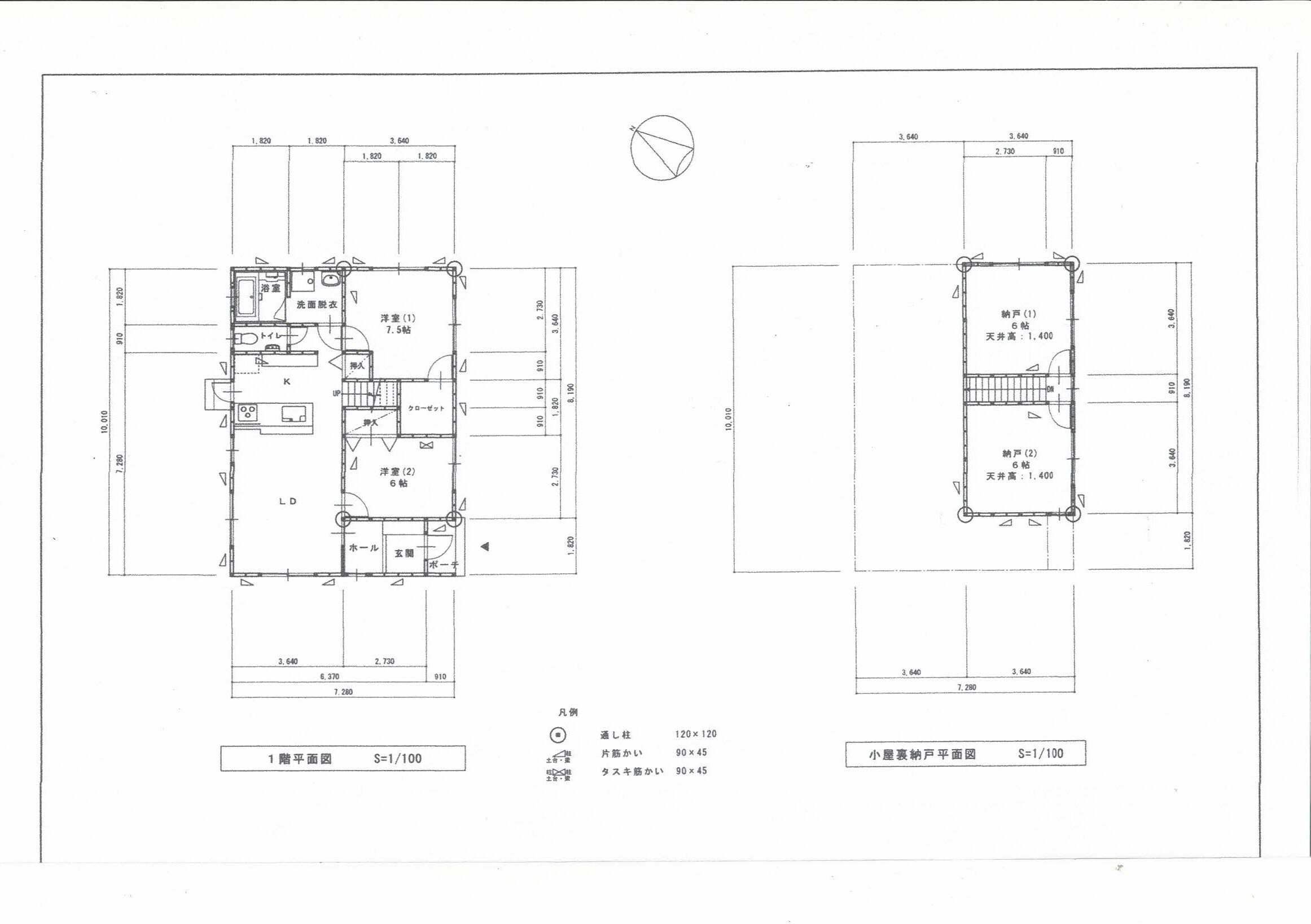
2階8畳2部屋はシアタールームや、子供の遊び場、趣味の部屋等好みに使えます。
小学校、保育園に近く、 のんびり、ゆったり子育て出来る環境です。
いつでもご案内致します。お気軽にお問い合わせください。TEL0265-35-1282
資金計画 例 1 土地、建物、消費税込み2,750万円(諸経費は自己資金) 豊丘村の補助金が土地建物で120万円あります。(補助金の詳細は問合せください) 借入金2.630万円とした場合(金利年1%、35年払い、10年固定金利、ボーナス払いなしの場合) 月々払い 74,241円
| 物件番号 | 2509 |
| 物件名称 | 豊丘村河野りんご広場A棟 |
| 物件種目 | 土地付き新築分譲住宅 |
| 住 所 | 豊丘村河野7954-10 |
| 価 格 | 2,750万円 |
| 間取り | 1F・1LDK16.洋室7.5、ウオーキングクローゼット2,洋室6,押入、脱衣室、バス、トイレ、物入 2F・納戸8,納戸8 |
| 土地面積 | 193.90㎡(58.65坪)+道路部17.17㎡(5.19坪) |
| 建物面積 | 床面積 71.21㎡(21.54坪)+小屋裏面積29.81㎡(9.01坪)=101.02㎡(30.55坪) |
| 接 道 | 北公道に17m、東私道に14m |
| 現況・地目 | 宅地 田 |
| 権 利 | 所有権 |
| 構 造 | 木造在来工法 |
| 建ぺい率 | ー |
| 容積率 | ー |
| 都計・用途 | 都市計画区域外 |
| 築 年 | 2025年9月末完成予定 |
| 駐車場 | 7台 |
| 取引形態 | 売主 |
| 学校、保育所、交通 | 豊丘北小200m、北保育園、10m、JR市田駅2800m |
| 設備 | エコキュート、IHヒーター、システムキッチン、ユニットバス、洗面ユニット、照明器具、テラス |





